HỆ THỐNG THỦY LỰC BÀN NÂNG Ô TÔ KIỂU 4 TRỤ (SỐ 13)
Hệ thống thủy lực cho bàn nâng xe ô tô 4 trụ (power pack for 4 post car lift) là hệ thống được dùng để điều khiển bàn nâng xe ô tô kiểu bốn trụ đứng. Đây là một kiểu bàn nâng khá phổ biến ở các gara ô tô do có thiết kế đơn giản, vận hành ổn định và êm ái, do sử dụng hệ thống dẫn động bằng xi lanh thủy lực nên gần như không có tiếng ồn khi làm việc. Bàn nâng ô tô kiểu 4 trụ có kết cấu đơn giản như hình 13.1 dưới đây.

Hình 13.1. Bàn nâng ô tô kiểu bốn trụ
Hệ thống thủy lực của bàn nâng ô tô kiểu bốn trụ được thiết kế nhỏ gọn với chân để phụ có thể lắp đặt dọc theo trụ nâng. Điện áp động cơ điện sử dụng thường là loại xoay chiều một pha AC 220V hoặc ba pha AC380 V, sơ đồ thủy lực của hệ thống này như hình 13.2 dưới đây.

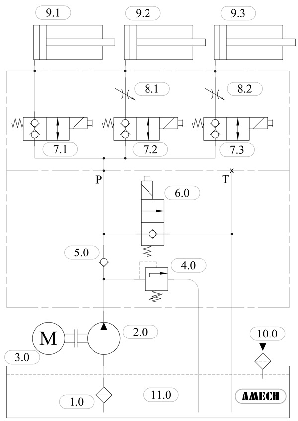
Hình 13.2. Sơ đồ thủy lực cho bàn nâng ô tô kiểu 4 trụ.
|
1- Lọc dầu hút |
7- Van phân phối thủy lực 4/2 |
|
2- Bơm dầu thủy lực |
8- Van tiết lưu một chiều |
|
3- Động cơ điện |
9- Xi lanh thủy lực |
|
4- Van an toàn |
10- Nắp đổ dầu |
|
5- Van một chiều |
11- Thùng chứa dầu |
|
6- Van phân phối thủy lực 4/2 |
|
Chức năng nhiệm vụ của các phần tử thủy lực trong sơ đồ hình 13.2:
+ Lọc dầu hút số 1 (Filter section):
Loại bỏ tạp chất bẩn trước khi vào bơm dầu và hệ thống thủy lực, nhằm bảo vệ các thiết bị thủy lực không bị xước, kẹt các bề mặt làm việc. Lọc dầu hút thường dùng loại 100 µm.
+ Bơm dầu thủy lực số 2 (Hydraulic Pump):
Là thiết bị chuyển hóa năng lượng từ đồng cơ điện thành năng lượng dòng thủy lực với áp suất và lưu lượng nhất định cấp vào hệ thống thủy lực. Thường bơm sử dụng trong sơ đồ này là bơm thủy lực bánh răng.
+ Động cơ điện số 3:
Là thiết bị chuyển hóa điện năng thành mô men quay bơm dầu thủy lực. (Tùy vào yêu cầu sử dụng có thể dùng các loại điện áp khác nhau như: Động cơ điện xoay chiều một pha AC 220V, động cơ điện xoay chiều ba pha AC 380V…).
+ Van an toàn số 4 (Relief Valves):
Là thiết bị thủy lực có nhiệm vụ bảo vệ hệ thống thủy lực khi quá tải. Van này được đặt sẵn một áp suất nhất định, khi bơm dầu thủy lực đạt mức áp suất này (do kẹt cơ khí hoặc có vật cản trong quá trình làm việc dẫn tới tại trọng nâng quá lớn) dầu sẽ được xả về thùng => áp suất không thể tăng thêm => bảo vệ các phần tử thủy lực khác.
+ Van một chiều số 5 (check valve):
Van này có nhiệm vụ chỉ cho dòng dầu đi theo một hướng từ bơm lên, nhằm bảo vệ bơm không bị quay ngược chiều khi động cơ điện dừng đột ngột do mất điện.
+ Van phân phối 2/2 (van điện từ, van solenoid) số 6:
Van này có nhiệm vụ đào chiều đường dầu thủy lực để hạ bàn nâng. Để điều khiển van này phải có dòng điện hoặc nhấn bằng tay vào đầu van (tùy loại van có hoặc không có chức năng này).
+ Van phân phối 2/2 (van điện từ, van solenoid) số 7:
Van này có nhiệm vụ đào chiều đường dầu thủy lực, được dùng khi nâng và hạ bàn nâng. Để điều khiển van này phải có dòng điện hoặc nhấn bằng tay vào đầu van (tùy loại van có hoặc không có chức năng này).
+ Van tiết lưu một chiều số 8 (One Way Restrictors):
Van này có nhiệm vụ thay đổi tốc độ khi hạ bàn nâng.
+ Xi lanh thủy lực số 9 (Hydraulic cylinder):
Xi lanh có nhiệm vụ tạo lực đẩy để nâng bàn. Xi lanh thủy lực thường dùng trong ứng dụng này là loại AMP5-TS-W.
+ Nắp đổ dầu số 10:
Với bộ nguồn nhỏ thì vị trí này vừa có nhiệm vụ cấp dầu vừa có nhiệu vụ tháo dầu ra khỏi thùng dầu.
+ Thùng chứa dầu số 11 (Tank oil):
Chứa mức dầu phù hợp cho hoạt động của toàn bộ hệ thống. Tùy vào vị trí lắp đặt và yêu cầu sử dụng mà ta có thể chọn thùng dầu tròn (kiểu trụ tròn) hoặc vuông (hình hộp chữ nhật).
Hình ảnh một số model xi lanh thủy lực có thể dùng cho bàn nâng thủy lực ô tô 4 trụ được sản xuất bởi công ty Amech:
|
|
|
|
|
|
Xi lanh thủy lực AMP5-RB-W |
Xi lanh thủy lực AMP3-RC-W |
Xi lanh thủy lực AMH-CT-W |
Xi lanh thủy lực AHP-CT-W |
