SƠ ĐỒ THỦY LỰC MÁY ÉP RÈN 2000 TẤN
Trên các máy ép rèn người ta thường sử dụng để thực hiện các nguyên công rèn tự do ( vuốt, chồn, ép nhẫn, đột,chặt..) và dập thể tích trong khuôn.

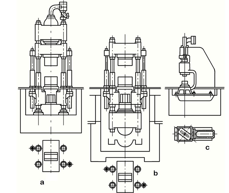
Hình 1-1: Các phương án bố trí máy rèn ép.
Kết cấu máy ép có bốn cột, khung cố định và các xi lanh công bố trí phía trên (Hình 1-1.a). Kết cấu như vậy đảm bảo thao tác dễ dàng khi rèn tự do các dạng phôi trong thời gian gia công và bảo đảm tính ổn định cao của máy khí chịu các lực lệch tâm.
Khi sử dụng kết cấu máy ép có khung di động (Hình 1-1.b), có thể bố trí dầm trên hẹp. Ưu điểm của việc bố trí là chiều cao của máy ép không lớn so với mặt bằng sàn thao tác và khả năng đưa phôi vào ra tốt hơn.
Máy áp một trụ (Hình 1-1.c) có khả năng vận hành tốt, được chế tạo có lực ép dưới 12 MN(1200 T).
Các thông số chính và các kích thước của máy ép rèn kiểu bốn cột, công dụng chung được ghi trong tiêu chuẩn GOCT-284-80, trong đó có trình bày cả loại máy ép với lực ép danh định 5-50 MN và hành trình của dầm di động là 800-2500mm.

Hình 1-2. Sơ đồ thủy lực của máy rèn kiểu ba xi lanh
|
1.Hộp các van nạp 2.Van nạp-xả của xi lanh giữa 3.Các xi lanh đẩy về 4.Các xi lanh bên cạnh 5.Xi lanh giữa 6.Bộ truyền bánh răng 7.Phản hồi 8.Xi lanh khí để làm căng dây 9.Cơ cấu vi sai |
10.Trục chính của bộ phân phối 11.Bộ chuyển đổi chế độ làm việc của máy ép 12.Van trượt 13.Pittông hạn chế vị trí của van trượt 14.Van tiết lưu 15.Van chặn 16.Bộ khuyếch đại 17.Thùng nạp 18.Bình tích áp của điều khiển thủy lực |
19.Bộ phân phối 20.Van điều khiển đóng các xi lanh công tác và nạp chất lỏng áp suất cao vào xi lanh công tác 22.Cần điều khiển 23.Bơm điều khiển thủy lực bộ phân phối 24.Bình tích áp 25.Van nạp chất lỏng áp suất cao vào bộ phân phối 26.Xi lanh tự động đóng hành trình công tác |
Hiện nay, kiểu dẫn động được sử dụng rộng rãi nhất cho máy ép rèn là loại dẫn động kiểu bơm trước bình tích áp. Kiểu dẫn động hơi thủy lực không được sử dụng ở các máy ép mới sản xuất vì không kinh tế.
Đối với các máy ép có lực nhỏ hơn 30 MN, sử dụng rộng rãi loại dẫn động bơm dầu –không có bình tích áp. Áp suất dầu được sử dụng thường là 30÷35 MPa. Khi dùng dầu làm chất lỏng công tác, thường người ta sử dụng phương pháp bố trí máy ép có khung di động và xi lanh công tác đặt dưới.
Trên Hình 1-2 trình bày sơ đồ thủy lực nguyên lý để điều khiển máy rèn ép kiểu ba xi lanh có lực 20 MN. Trong sơ đồ này, dầm ngang của máy sẽ lặp lại chuyển động của cần điều khiển không chỉ theo hướng và chiều dài hành trình, mà còn cả theo tốc độ.
Trên Hình 1-2 các vị trí điều khiển như sau:
+ Chế độ I (rèn bình thường): Hành trình tiếp cận phôi-cấp chất lỏng từ thùng nạp, hành trình công tác -cấp chất lỏng từ trạm bơm-bình tích áp, p = 32MPa;
+ Chế độ II (ép thẳng): Cấp chất lỏng cho xi lanh máy ép chỉ từ trạm bơm – bình tích áp, các xi lanh đẩy về ở dưới áp suất không đổi;
+ Chế độ III: máy làm việc dưới tác dụng của chất lỏng công tác từ thùng nạp và khối lượng của các phần chuyển động.
Mọi yêu cầu thắc hoặc tư vấn hỗ trợ có thể liên hệ trực tiếp với chúng tôi Công ty Amech theo số điện thoại hoặc email sales.amech@gmail.com.